place
Наши филиалы: Брест

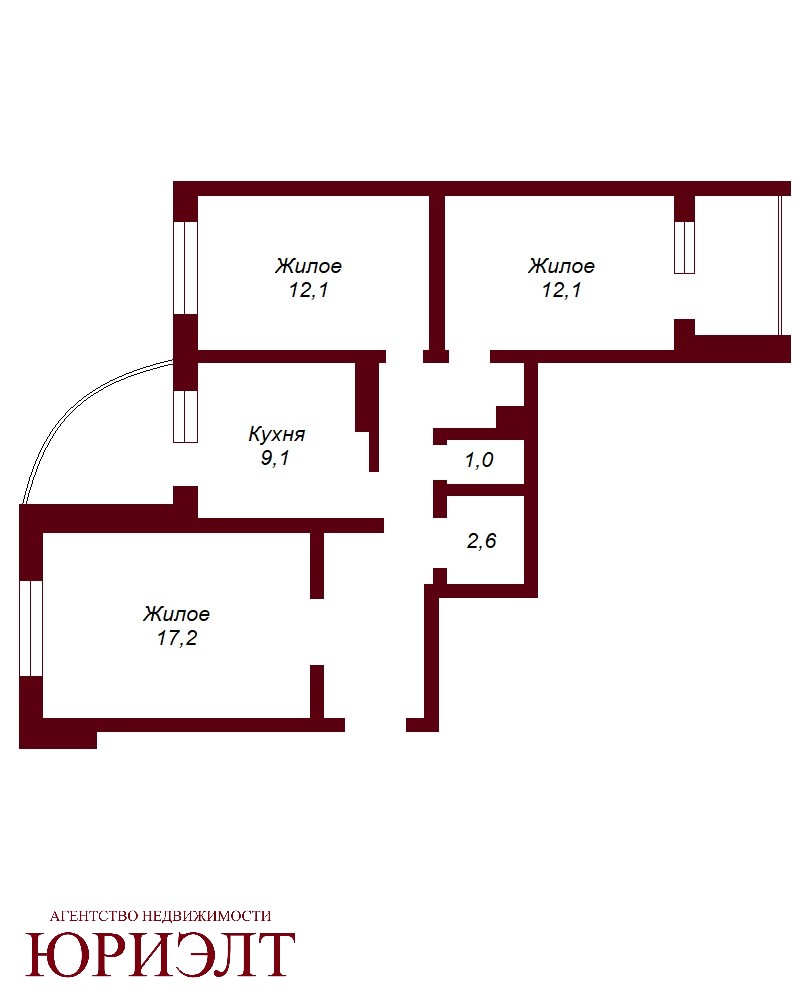
3 комнатная квартира

Продажа Брест, Вульковская, лот 21426

Лот. 21426

 

В продаже 3-комнатная квартира в классном спальном районе города Бреста, улица Вульковская

Расположена на 6-м этаже 10-этажного панельного дома 1995 года постройки. Общая площадь - 70,5 м2, три полноценные изолированные комнаты, квадратная кухня - 9,1 м2, две большие лоджии, раздельный санузел.

Квартира теплая, в жилом состоянии, частично установлены окна ПВХ, потолки в жилой зоне натяжные, полы - паркет / плитка в кухне.

При продаже в квартире остается кухонный гарнитур со встроенной техникой, встроенные системы хранения, а также новые ванна и унитаз.

Тихий двор с прекрасной инфраструктурой, рядом с домом школа и сад, магазины и остановки общественного транспорта.

 

Договор №214/9 от 06.04.2026

ОДО «Юриэлт», УНП 101214439, лицензия № 02240/8 от 17.02.2005 на право осуществления деятельности

205 254.36 BYN 69 900.00$ 3 105.21 BYN/м2 1 057.49$/м2
Предложить свою цену
Заполните телефон!
Введите цену или отметьте галочкой "Консультация по кредиту"
Нажимая "Отправить" я даю согласие на обработку персональных данных
Область
Брестская область
Район области
Брестский
Кол-во комнат квартиры
3
Кол-во раздельных комнат
3
Площадь(О/Ж/К)
66.10/41.40/9.10
Этаж
6/10
Год постройки
1995
Материалы дома
Панель
Балконы
Лоджия: 2
Сан. узел (кол-во)
Раздельный: Есть
Номер и дата договора
214/9 от 06.04.2026
Посмотреть на карте