place
Наши филиалы: Брест

3 комнатная квартира

Продажа Брест, Улица Дубровская, лот 69625

Лот. 69625

 

В продаже уютная 3-комнатная квартира в городе Бресте!

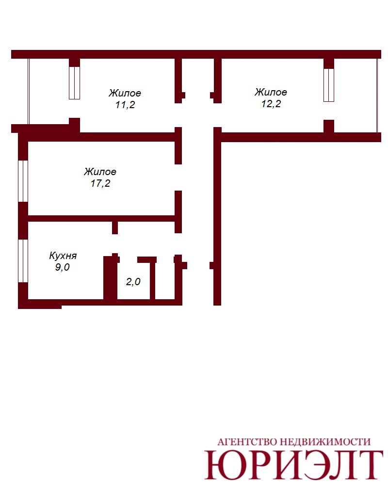
1-й этаж 5-этажного панельного дома, 1989 года постройки, по ул. Дубровской. Общая площадь квартиры с двумя лоджиями - 71,4 м2, жилая - 40,6 м2, кухня - 9,0 м2, гардеробная и раздельный санузел. Обе лоджии застеклены и утеплены, под одной из них оборудован погреб.

Квартира светлая и аккуратная: окна заменены на ПВХ, металлическая входная дверь, межкомнатные - МДФ, потолки - частично натяжные, в спальне - выровнены и окрашены. Современный ремонт в санузле с заменой коммуникаций и плитки.

Удачное расположение дома вблизи инфраструктуры и зелёной зоны, приличный подъезд, есть стоянка для авто.

 

Договор №696/9 от 13.11.2025

ОДО «Юриэлт», УНП 101214439, лицензия № 02240/8 от 17.02.2005 на право осуществления деятельности

198 980.67 BYN 66 900.00$ 2 969.87 BYN/м2 998.51$/м2
Предложить свою цену
Заполните телефон!
Введите цену или отметьте галочкой "Консультация по кредиту"
Нажимая "Отправить" я даю согласие на обработку персональных данных
Область
Брестская область
Район области
Брестский
Кол-во комнат квартиры
3
Кол-во раздельных комнат
3
Площадь(О/Ж/К)
67.00/40.60/9.00
Этаж
1/5
Год постройки
1989
Материалы дома
Панель
Балконы
Лоджия: 2
Сан. узел (кол-во)
Раздельный: Есть
Номер и дата договора
696/9 от 13.11.2025
Посмотреть на карте