place
Наши филиалы: Брест

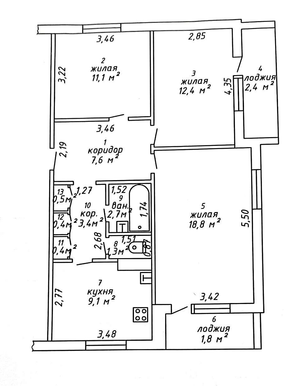
3 комнатная квартира

Продажа Барановичи, Энтузиастов, 34

Продаётся 3-комнатная квартира по адресу: ул. Энтузиастов, д. 34.

Квартира находится на 3-ом этаже в 5-этажном панельном доме 1984 г. п.

Общая площадь по СНБ – 72 м², общая жилая - 67.7м², жилая – 42,3 м², кухня – 9.1 м².

* окна – стеклопакеты;

* 2 лоджии;

* раздельный санузел;

* полы – ламинат.

* вся мебель остается.

* аккуратный, чистый подъезд.

В 2014 г. был произведён капитальный ремонт фасада.

Район с развитой инфраструктурой и прекрасным транспортным сообщением. Рядом с домом расположен д/с № 3, №9, №14, №25; школы №17 и № 20.

В шаговой доступности все необходимое для комфортного проживания: магазины, рынок «Алексеевский», банк, поликлиники.

По интересующим вопросам звоните!

125 042.40 BYN 42 000.00$ 1 847.00 BYN/м2 620.38$/м2
Предложить свою цену
Заполните телефон!
Введите цену или отметьте галочкой "Консультация по кредиту"
Нажимая "Отправить" я даю согласие на обработку персональных данных
Область
Брестская область
Район области
Барановичский
Микрорайон
Восточный-1
Кол-во комнат квартиры
3
Кол-во раздельных комнат
3
Площадь(О/Ж/К)
67.70/42.30/9.10
Этаж
3/5
Год постройки
1984
Материалы дома
Панель
Балконы
Лоджия: 2
Сан. узел (кол-во)
Раздельный: 1
Номер и дата договора
152/11 от 25-10-2025
Посмотреть на карте