place
Наши филиалы: Брест

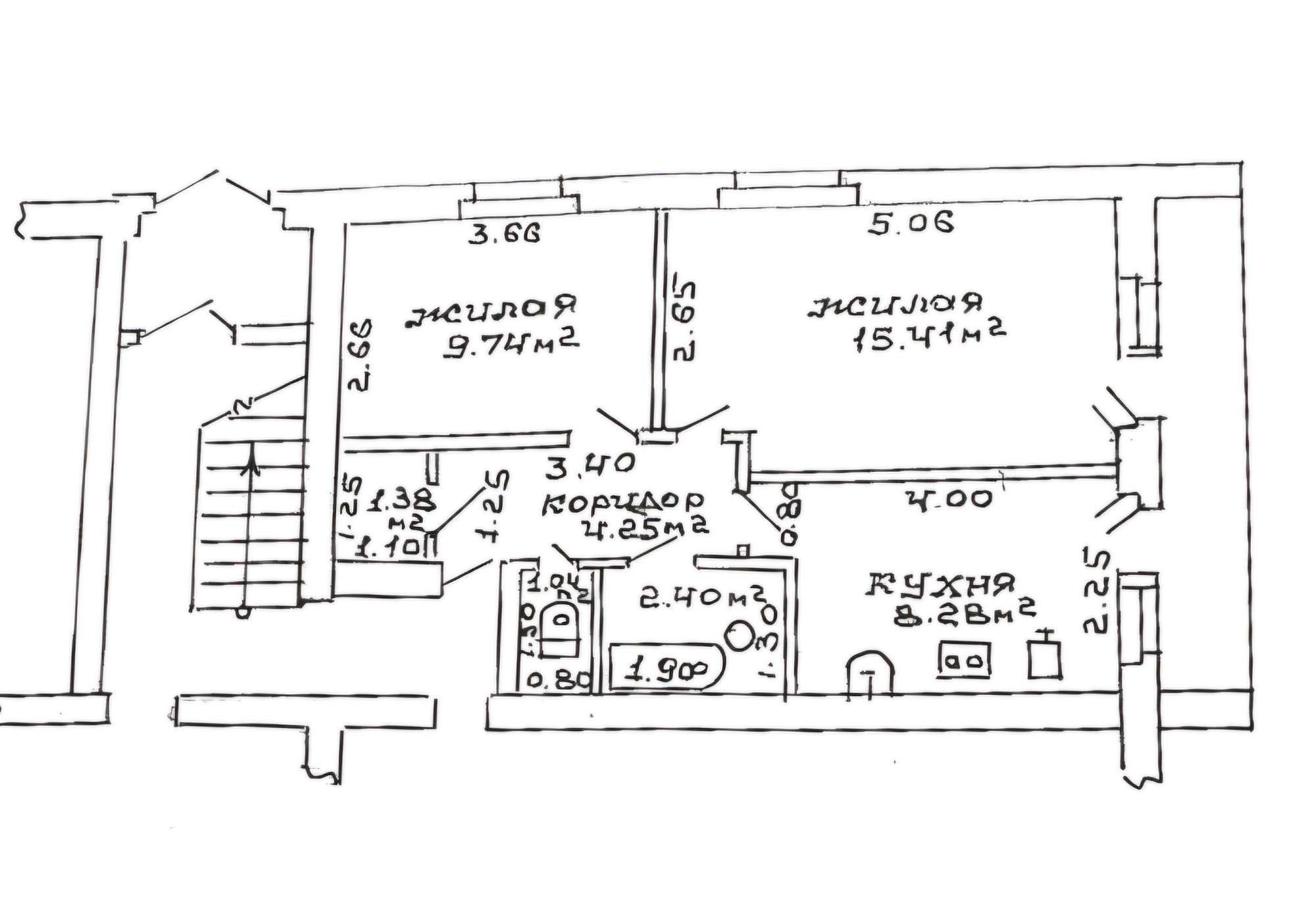
2 комнатная квартира

Продажа Светлый, Центральная, 4

В продаже 2-комнатная квартира в Барановичском р-не в п. Светлый по адресу: ул. Центральная, д. 4 (20 км от города).

Расположена квартира на 1-м этаже 2-этажного кирпичного дома 1984 г. п.

Общая площадь квартиры – 42.5 м²., жилая – 25.1 м², кухня – 8.2 м².

В квартире требуется произвести ремонт.

- Окна - ПВХ;

- С/у раздельный;

- Большая лоджия с выходом из кухни и жилой комнаты;

- Есть погреб, сарай, а также возле квартиры есть огороженный участок под огород.

Коммуникации - центральные, отопление - твердотопливное.

В поселке есть магазин, курсирует автобус.

По интересующим вопросам и для согласования времени осмотра звоните по контактному номеру.

19 351.80 BYN 6 500.00$ 455.33 BYN/м2 152.94$/м2
Предложить свою цену
Заполните телефон!
Введите цену или отметьте галочкой "Консультация по кредиту"
Нажимая "Отправить" я даю согласие на обработку персональных данных
Область
Брестская область
Район области
Барановичский
Кол-во комнат квартиры
2
Кол-во раздельных комнат
2
Площадь(О/Ж/К)
42.50/25.10/8.20
Этаж
1/2
Год постройки
1984
Материалы дома
Кирпич
Балконы
Лоджия: 1
Сан. узел (кол-во)
Раздельный: 1
Номер и дата договора
74/11 от 23-05-2025
Посмотреть на карте