place
Наши филиалы: Брест

2 комнатная квартира

Продажа Пинск, Первомайская, 113

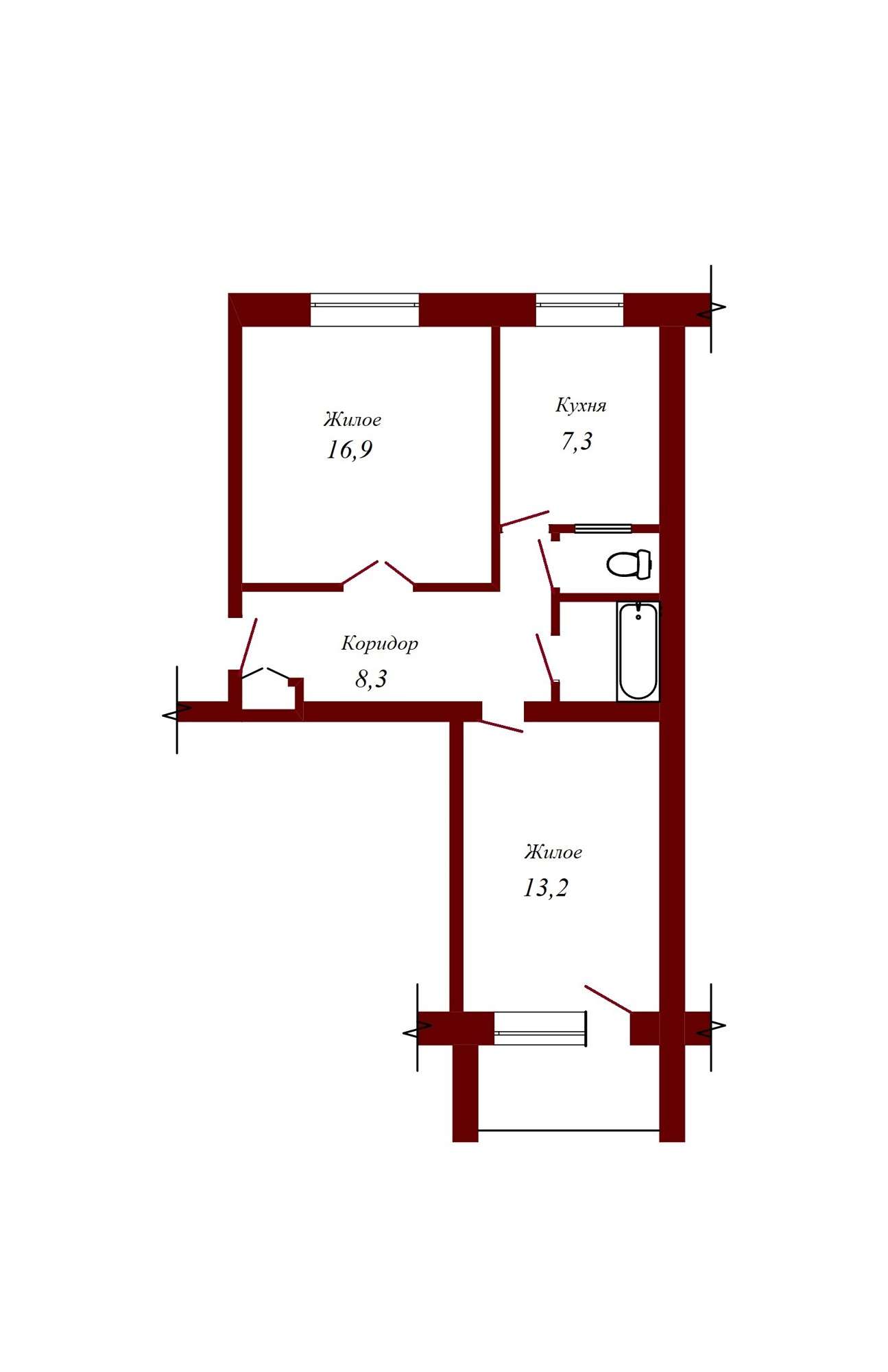
Продается светлая и теплая 2-комнатная квартира общей площадью 49,2 м² (30,3 м² жилая, 7,3 м² кухня) на 3 этаже 5-этажного кирпичного дома по адресу: ул. Первомайская, д. 113. Находится в центральной части города. Изолированные комнаты (16,9 м² и 13,2 м²), окна выходят на две стороны. Выполнен качественный косметический ремонт, установлены стеклопакеты. Санузел раздельный, облицован плиткой.

Имеется лоджия с выходом из спальни. Квартира продается с кухонным гарнитуром и мебелью во всех комнатах. Есть подвальное помещение.

Дом расположен в районе с развитой инфраструктурой: в шаговой доступности школа № 11, детские сады, магазины (Санта, Маяк, Евроопт), рынки, общественная баня, аптеки и поликлиника. Большая дворовая территория для парковки.

Квартира без обременений, один взрослый собственник, чистая продажа, подходит под ипотеку.

Договор от 15.04.2025г. № 64/8, ОДО «Юриэлт», УНП 101214439, лицензия № 02240/8 от 17.02.2005 на право осуществления деятельности по оказанию юридических услуг (риэлтерские услуги).

109 216.00 BYN 2 219.84 BYN/м2
Предложить свою цену
Заполните телефон!
Введите цену или отметьте галочкой "Консультация по кредиту"
Нажимая "Отправить" я даю согласие на обработку персональных данных
Область
Брестская область
Район области
Пинский
Кол-во комнат квартиры
2
Кол-во раздельных комнат
2
Площадь(О/Ж/К)
49.20/30.30/7.30
Этаж
3/5
Год постройки
1974
Материалы дома
Кирпич
Балконы
Лоджия: 1
Сан. узел (кол-во)
Раздельный: 1
Номер и дата договора
64/8 от 15-04-2025
Посмотреть на карте